一、用途
撈毛機是一種可以連續自動攔截并清除流體中各種形狀雜物的水處理專用設備,可廣泛地應用于紡織、食品、造紙、皮革、屠宰及污水廠、電廠、水利等行業,是廢水處理工藝中的前級篩分設備,是較為普遍的前道初級固液篩分設備之一。
二、工作原理
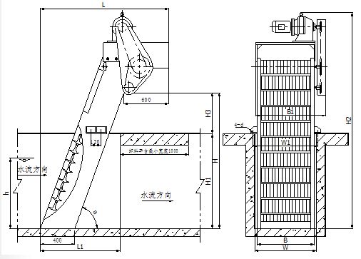
本機器是可根據不同的污水特性,可選擇“耙齒結構”或“刷條結構”或“網板階梯”等撈毛部件拼裝成回轉形式。在電機減速器的驅動下實現回轉運動,從而將流體中的雜質撈出。當撈毛部件運轉到本機的上部時,由于槽輪和彎軌的水平導向,使撈毛部件截留的固體物質脫落。
三、技術特性
1、本機具有自動化程度高、分離效率高、動力消耗小、無噪音、耐腐蝕的特性,可在無人看管的情況下連續穩定工作,可通過電氣過載安全保護裝置,在設備發生故障時,會自動停機,避免設備超負荷工作。
2、本機的獨特結構設計,具有很強的自動除渣能力,不會發生堵塞現象,所以日常維修工作量很少。
3、本機可根據不同水質選擇“耙齒”或“刷條”或“階梯板”等形式,且水流縫隙分為1mm、3mm、5mm、10mm、20mm、30mm、40mm、50mm等各種規格,選型由過水量、提升高度、固液分離總量和所分離物質的形狀、顆粒大小來選擇,同時選配不同的材質。
4.本機可根據溝渠深度、寬度進行定制。
耙齒結構:主要適用于城市河道如繩帶、枝葉、塑料袋、飲料瓶、果皮等塊狀、團狀大顆粒物的攔截和清除。耙齒可選尼龍、不銹鋼304或316L材質。

條刷結構:綜合性能在耙齒結構的基礎上進一步得到提升,廣泛適用于果品、紡織、醫藥、化工、屠宰及市政工程給排水系統,特別適用于φ0.5mm以上的動物毛發、紡織纖維等細小纖維雜質的攔截和打撈,是企業小投資,高效率的最佳選擇。

網板階梯:主要適用于φ2mm以上,且質地較輕的懸浮垃圾,本機具有網孔密度大,透水量大的特點,適合城市污水、造紙廠、飲料廠使用。







